Tuesday, November 27, 2018

What $8,000 rents in NYC right now

See what you can get in neighborhoods like West Village, Hell's Kitchen, and Dumbo

Welcome to Curbed Comparisons, a weekly column that explores what one can rent for a set dollar amount in various NYC neighborhoods. Is one man's studio another man's townhouse? Let's find out! Today, we're looking at apartments renting around $8,000/month.

For $8,000/month, there's this two-bedroom duplex in the West Village, equipped with two bedrooms, one and a half bathrooms, beamed ceilings, exposed brick walls, a decorative fireplace, built-ins, an eat-kitchen with an island, a washer/dryer, and access to the building's backyard. [Floorplan]

A 1,670-square-foot condo in Dumbo is renting for an even $8,000/month. The apartment is a penthouse loft with four bedrooms, two and a half bathrooms, a massive living and dining room, barn doors, nearly 10 closets, and a washer/dryer. The open kitchen comes with a double-height skylight, a walk-in pantry, and a full island. [Floorplan]

If you'd rather a Manhattan loft, this lovely Greenwich Village apartment, asking $7,999/month, has a mix of pre-war and modern details. The one-bedroom, two and a half bathroom home has 11-foot beamed ceilings, a wall of built-ins, and a library ladder in the living room. The master bedroom comes with a walk-in closet, and a second room can be configured into a home office or a guest room. [Floorplan]

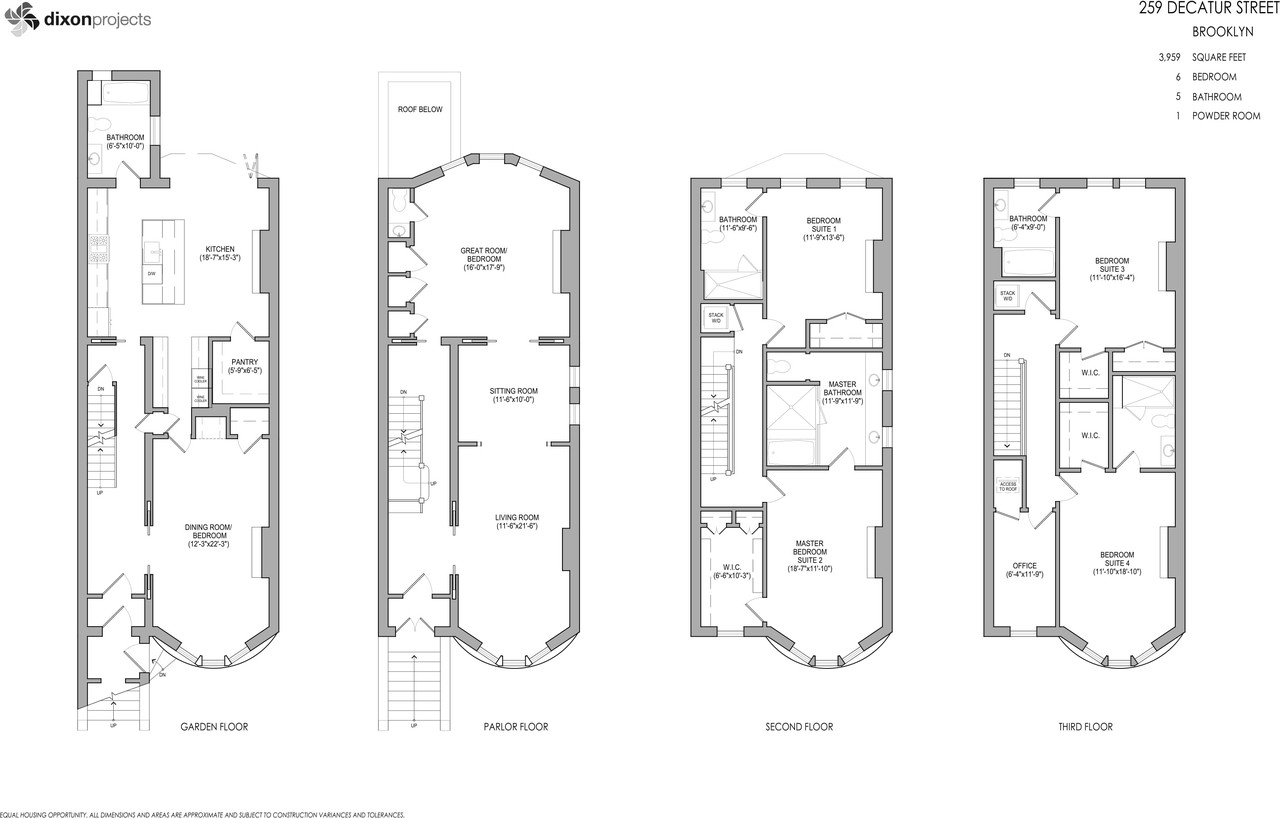
A gorgeous Bed-Stuy townhouse wants $7,995/month. The house measures more than 3,900 square feet and has six bedrooms, five bathrooms, and a powder room. Its flourishes include elaborate carved woodwork, stained glass, wainscoting, bay windows, decorative fireplaces, pocket doors, and a huge kitchen with custom cabinetry. [Floorplan]

And finally, a two-bedroom, two-bathroom in Hell's Kitchen that could be rented furnished is renting for $8,000/month. The nearly 1,200-square-foot condo has a simple layout: There's an open kitchen that's kitted out with marble counters, a decent-sized living room, bedrooms that can fit queen-sized beds, a walk-in closet, and a washer/dryer.

No comments:

Post a Comment